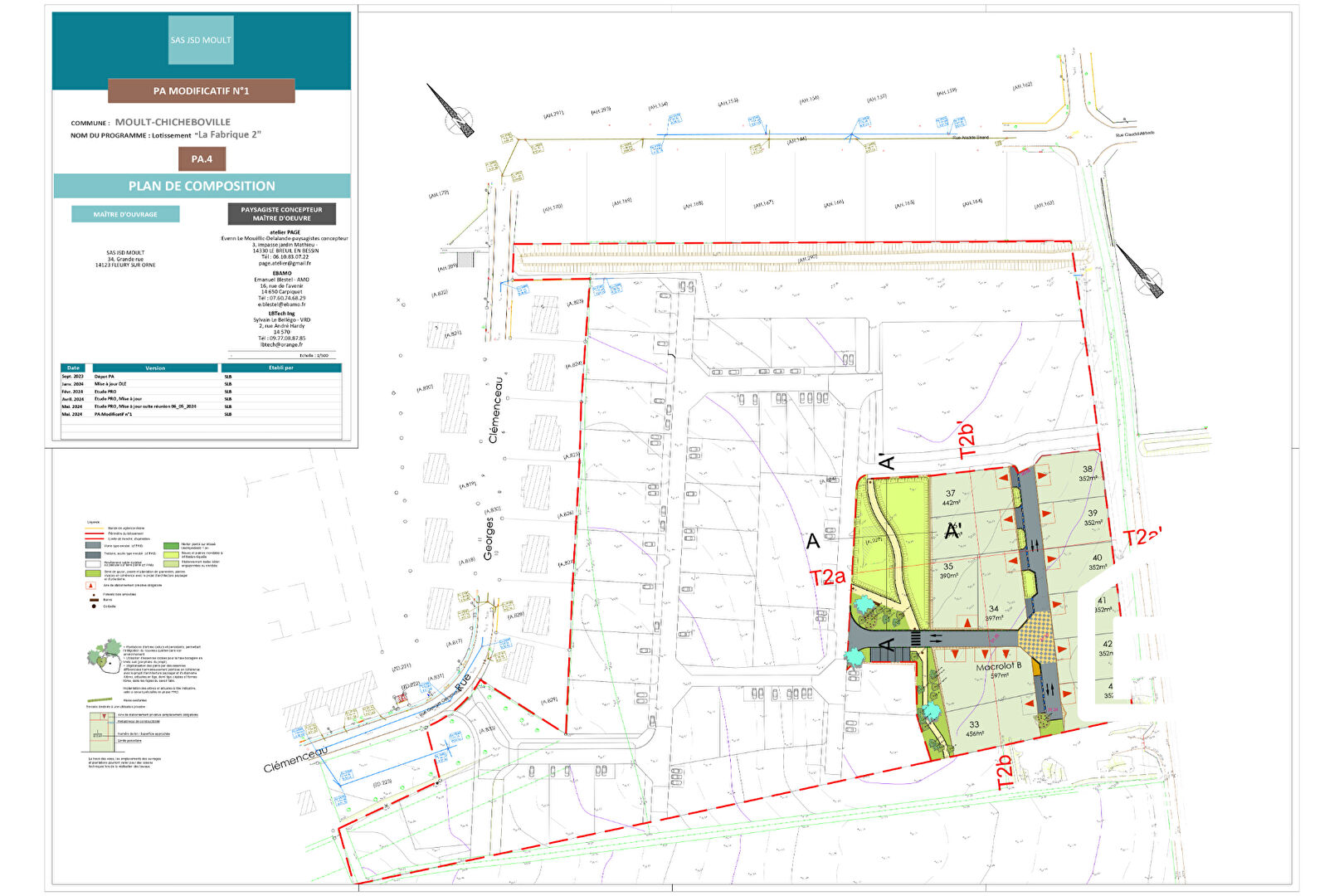
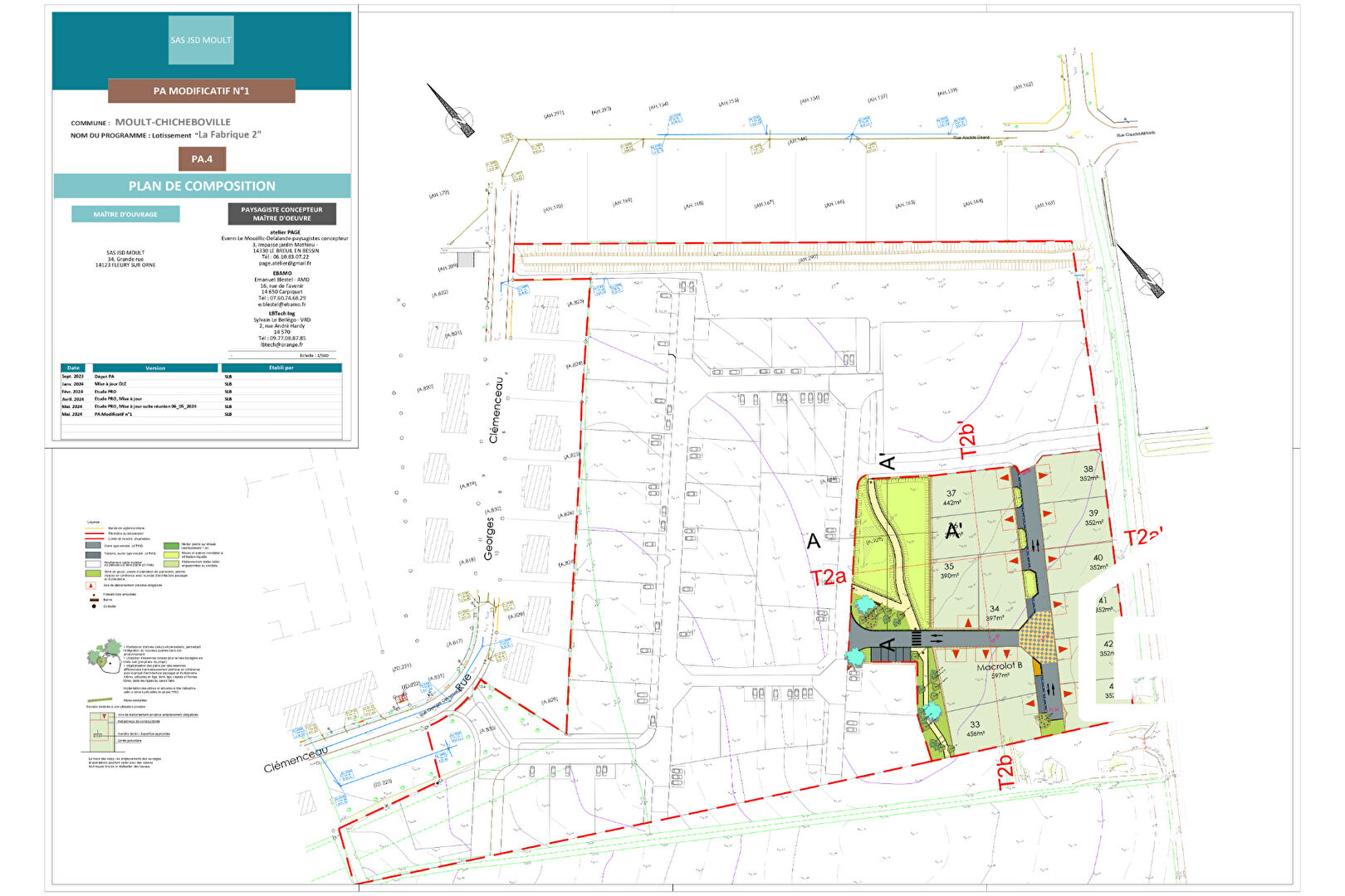
Vous souhaitez acheter un terrain sur la commune de MOULT? A 20 km de CAEN Programme de 43 terrains viabilisés et Libre choix de constructeur -Permis de construire déposable en Janvier 2026 Plusieurs lots sont disponibles, les terrains proposés sont d’une surface de 337 m² à 637 m²
+ 3 MACROLOTS disponibles:
Lot A : 392 m² – 80 000 euros (surface de plancher 300 m²)
Lot B : 598 m² – 120 000 euros (surface de plancher 420 m²)
Lot C : 775 m² – 120 000 euros (surface de plancher 500 m²)
Contactez-nous pour plus d’informations.

